FICHA TÉCNICA
PORTA MILLENNIUM PLUS PIVOT
DESCRIÇÃO
Sistema de correr minimalista com ruptura de ponte térmica que permite a máxima luminosidade com a mínima secção vista de alumínio. Apresenta um design elegante com um nó central de apenas 20 mm, e oferece a possibilidade de embutir os aros inferiores, superiores e laterais. Opção de fecho no nó central, permitindo ocultar as folhas dentro do aro a partir de uma vista frontal. Possibilidade de fecho embutido que facilita o cruzamento de folhas.
» Acessibilidade
DADOS TÉCNICOS
» Secções
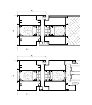
Moldura: 80 mm
Folha: 80 mm
» Possibilidades de abertura
Pivotante
» Painel
80 mm
» Espessura do perfil
Porta: 2,0 mm
» Comprimento da barra de poliamida
24 / 26 mm
» Dimensões máximas da folha
Largura (L): 2100 mm (1700* + 400 mm)
Altura (H): 3000 mm
» Peso máximo da folha
250 kg
Consultar peso e dimensões máximas conforme tipologia
*Medida a partir do eixo pivotante
- Possibilidade de bicolor
- Lacado cores (RAL, manchas e texturizados)
- Lacado imitação madeira
- Lacado antibacteriano
- Anodizado
TESTES
» Transmitância térmica (UD)
UD ≥ 0,77 (W/m²K)
» Permeabilidade ao ar
(UNE-EN 12207) Classe 4
» Estanqueidade à água
(UNE-EN 12208) Classe 5A
» Resistência ao vento
(UNE-EN 12210) Classe C5
Teste de referência
AEV 1,20 x 2,00 m / 1 folha
- DESCRIÇÃO
-
DESCRIÇÃO
Sistema de correr minimalista com ruptura de ponte térmica que permite a máxima luminosidade com a mínima secção vista de alumínio. Apresenta um design elegante com um nó central de apenas 20 mm, e oferece a possibilidade de embutir os aros inferiores, superiores e laterais. Opção de fecho no nó central, permitindo ocultar as folhas dentro do aro a partir de uma vista frontal. Possibilidade de fecho embutido que facilita o cruzamento de folhas.
Possibilidades
» Acessibilidade - DADOS TÉCNICOS
-
DADOS TÉCNICOS
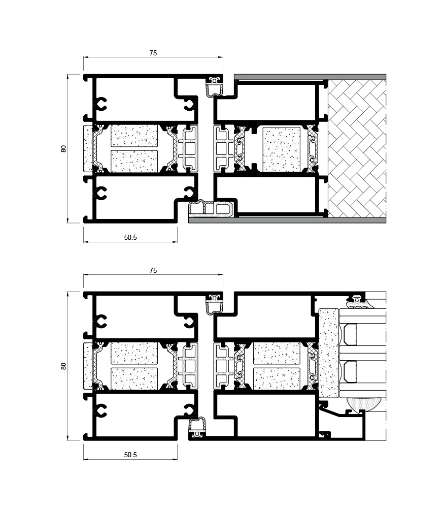
» Secções
Moldura: 80 mm
Folha: 80 mm» Possibilidades de abertura
Pivotante» Painel
80 mm» Espessura do perfil
Porta: 2,0 mm» Comprimento da barra de poliamida
24 / 26 mm» Dimensões máximas da folha
Largura (L): 2100 mm (1700* + 400 mm)
Altura (H): 3000 mm» Peso máximo da folha
250 kgConsultar peso e dimensões máximas conforme tipologia
*Medida a partir do eixo pivotante» Acabamentos
- Possibilidade de bicolor
- Lacado cores (RAL, manchas e texturizados)
- Lacado imitação madeira
- Lacado antibacteriano
- Anodizado - ENSAIOS
-
TESTES
» Transmitância térmica (UD)
UD ≥ 0,77 (W/m²K)» Permeabilidade ao ar
(UNE-EN 12207) Classe 4» Estanqueidade à água
(UNE-EN 12208) Classe 5A» Resistência ao vento
(UNE-EN 12210) Classe C5Teste de referência
AEV 1,20 x 2,00 m / 1 folha
ALUAVE – Indústria de Alumínios do Ave, Lda.
Rua de Lagoas, nº94 – Lote 3
4480-397 Vila do Conde
© 2025 Aluave - All Rights Reserved Developed inttera
Cookie Consent
Utilizamos cookies para melhorar a sua experiência no nosso site. Ao utilizar o nosso site, está a concordar com os cookies.
Este site usa cookies
Os sites armazenam cookies para melhorar a funcionalidade e personalizar sua experiência. Pode gerenciar suas preferências, mas bloquear alguns cookies pode afetar o desempenho e os serviços do site.
Cookies essenciais permitem funções básicas e são necessários para o bom funcionamento do site.
Os cookies estatísticos coletam informações anonimamente. Essas informações nos ajudam a entender como os visitantes utilizam nosso site.
Cookies de marketing são usados para rastrear visitantes em sites. A intenção é exibir anúncios relevantes e envolventes para cada usuário.





